A Spatii Comerciale Cluj felhívja a figyelmét egy telek vásárlásának lehetőségére Manasturban UTR ULic/c - CSÖ...
A Spatii Comerciale Cluj kizárólagosan eladásra kínál egy külvárosi telket Floresti-ben, a Donath - Floresti ész...
Eladó telket mutatunk be az Iris szomszédságában, az Oasului utca környékén. Lakóövezetben található, ...
Eladó telek a Sopor kerületben, Kolozsváron. Területe 1800 négyzetméter, homlokzata 30 négyzetméter.
Érdekel a fejlesztés a nagyvárosban? A Spatii Comerciale Cluj felhívja az Ön figyelmét arra a lehetőségre...
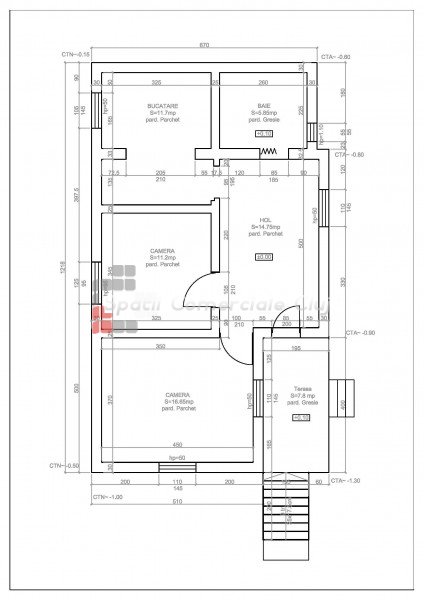
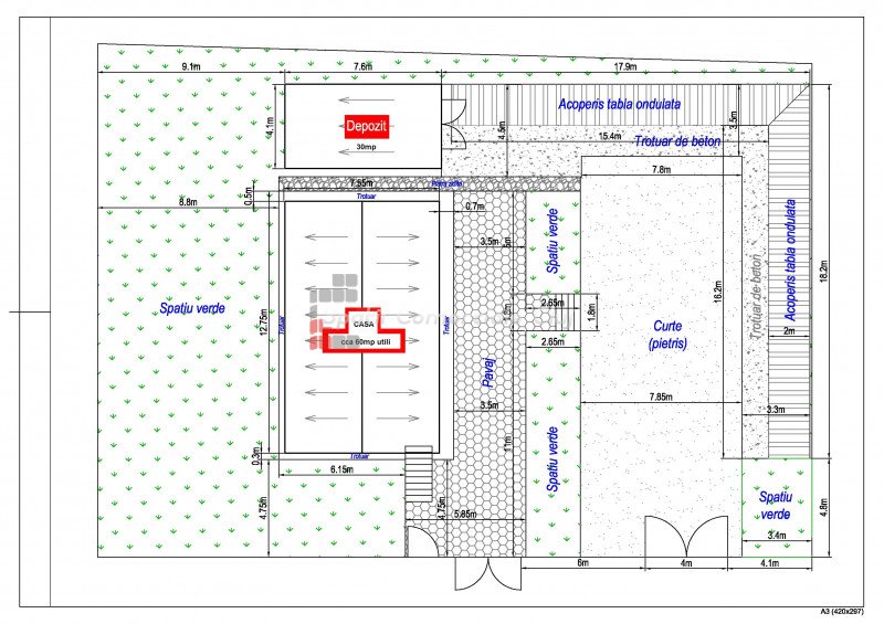
A Spatii Comerciale Cluj felhívja a figyelmét egy városhatáron belüli telek megvásárlásának lehetőségére, am...
» Hasonló ajánlatok Telek eladó on Cluj-napoca, Zóna Faget