Érdekel a mezőgazdasági befektetés? Arra gondol, hogy forrásokhoz jusson a mezőgazdasági tevékenységekhez? eur...
Eladásra kínálunk egy 2128 nm-es szántóföldet a városon belül, Floresti községben, a Gilau kijáratnál, az A3...
Érdekli a könnyű hozzáférés és az összes elérhető segédprogram? A Spatii Comerciale Cluj egy jó befek...
Eladásra kínálunk kizárólag egy városi telket Aitonban, Kolozsvár központjától 17 km-re (kocsival 3 perc), ide...
Eladásra kínálunk egy 994 négyzetméteres telket Szelcse városában, csendes környéken, közvetlen hozzáféréss...
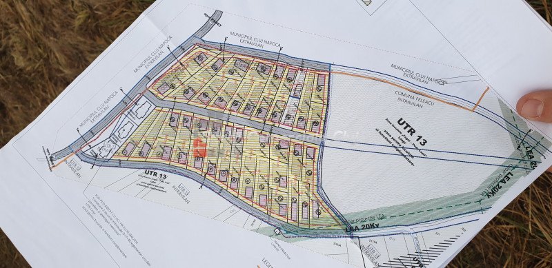
Exkluzivitás! 0% jutalék. Befektetési lehetőség! A Spatii Comerciale Cluj egy 500 nm-es városi tel...
» Hasonló ajánlatok Telek eladó on Cluj-napoca, Zóna Faget