Ez az ajánlat már nem érhető el.
Személyre szabott ajánlatért lépjen kapcsolatba az ügynökkel, vagy látogasson el hasonló ajánlatokra.
Lásd a hasonló ajánlatokat
Hasonló ajánlatok
A Spatii Comerciale Cluj egy elegáns stúdiólakást kínál a Gruia negyedben.
A 13 nm-es hasznos alapter...
» 1 szoba, 1 konyha, 1 fürdőszoba, 13 m2
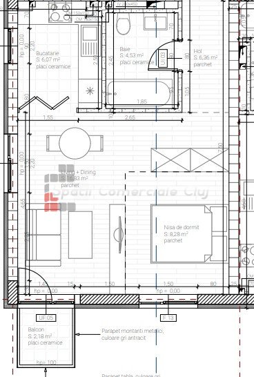
Eladó egy komfortos, 3 szobás garzonlakás Kolozsvár egyik legcsendesebb és legzöldebb részén, a Gruia negyedben,...
» 1 szoba, 1 konyha, 1 fürdőszoba, 12 m2
A Spatii Comerciale Cluj eladásra kínál egy 11 négyzetméteres stúdiólakást a Gyergyószentmiklósi negyedben, a ...
» 1 szoba, 1 konyha, 1 fürdőszoba, 11 m2
Eladó stúdiólakás Kolozsváron | Intre Lacuri kerület | Fujikura környéke.
A stúdiólakás a 4. eme...
» 1 szoba, 1 fürdőszoba, 15 m2
Jellemzők
Hasznos terület:
42.07 m2