Ez az ajánlat már nem érhető el.
Személyre szabott ajánlatért lépjen kapcsolatba az ügynökkel, vagy látogasson el hasonló ajánlatokra.
Lásd a hasonló ajánlatokat
Hasonló ajánlatok
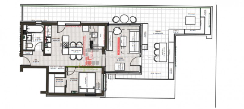
A Spatii Comerciale Cluj megvételre kínál egy 3 szobás, ikerházi lakást Floresti-ben, a Cetatii utcában.
» 3 camere, 1 konyha, 1 fürdőszoba, 63 m2
Bemutatjuk Önnek a Kolozs megyei Bácsiban található 3 szobás lakás vásárlási lehetőségét.
A f...
» 3 camere, 1 konyha, 1 fürdőszoba, 78 m2
A Spatii Comerciale Cluj eladásra kínál egy tágas, 82 nm hasznos alapterületű lakást a Porii utcában.
» 3 camere, 1 konyha, 2 Fürdők száma, 82 m2
A Spatii Comerciale Cluj örömmel kínál Önnek megvásárlásra egy különálló lakást Manasturban, a Mehedinti ut...
» 3 camere, 1 konyha, 2 Fürdők száma, 55 m2
A Spatii Comerciale Cluj közvetít egy gyönyörű és elegáns, 3 szobás lakás eladását, amely Manasturban, a Mehe...
» 3 camere, 1 konyha, 1 fürdőszoba, 65 m2
A Spatii Comerciale Cluj eladásra kínál egy 3 szobás lakást a Manastur negyedben.
Az 50 nm-es hasznos ...
» 3 camere, 1 konyha, 1 fürdőszoba, 50 m2