Ez az ajánlat már nem érhető el.
Személyre szabott ajánlatért lépjen kapcsolatba az ügynökkel, vagy látogasson el hasonló ajánlatokra.
Lásd a hasonló ajánlatokat
Hasonló ajánlatok
Eladásra kínálunk egy részben bútorozott 3 szobás lakást Florestiben, a Teilor utcában, az Eroilor sarokban.
» 3 camere, 1 konyha, 1 fürdőszoba, 56 m2
Fedezze fel egy modern, különálló lakás kényelmét, 54,5 négyzetméter hasznos alapterülettel, amely készen ál...
» 3 camere, 1 konyha, 1 fürdőszoba, 54 m2
A Spatii Comerciale Cluj megvételre kínál egy ikerházas lakást Floresti-ben, ideális családok vagy párok számá...
» 3 camere, 1 konyha, 1 fürdőszoba, 62 m2
A Spatii Comerciale Cluj közvetít egy 3 szobás lakás eladását, amely Floresti-ben, a Gheorghe Doja negyedben talá...
» 3 camere, 1 konyha, 1 fürdőszoba, 64 m2
A Spatii Comerciale Cluj eladásra kínál egy modern, 3 szobás lakást Floreștiben, a Szamos környékén – egy cse...
» 3 camere, 1 konyha, 1 fürdőszoba, 50 m2
A Spatii Comerciale Cluj eladásra kínál egy különálló, befejezett, kétszobás lakást az Urusagului utcában, eg...
» 3 camere, 1 konyha, 1 fürdőszoba, 43 m2
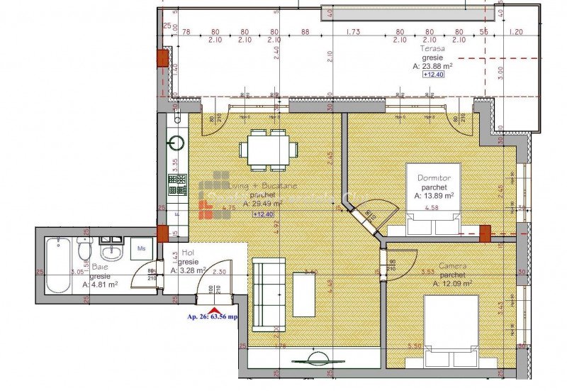
Jellemzők
Hasznos terület:
63.56 m2