Szeretnéd szomszédnak az erdőt? A Spatii Comerciale Cluj 362 négyzetméter földterület megvásárlásának ...
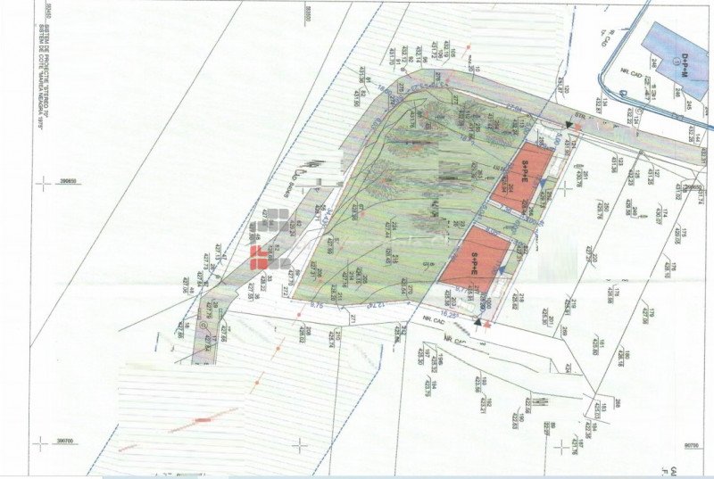
A Spatii Comerciale Cluj közvetíti a folyamatban lévő PUZ-val rendelkező telek eladását. A telek az Odobes...
Építési engedéllyel rendelkező telek családi ház építésére, Oasului utca, Panemar üzletnegyed. ...
Eladó egy 17 000 négyzetméteres telek Campenestiben, csendes környéken, a 2-es tó közelében. A tele...
Eladásra kínálunk egy 994 négyzetméteres telket Szelcse városában, csendes környéken, közvetlen hozzáféréss...
A Spatii Comerciale Cluj egy szolgalmi joggal rendelkező Someseni-beli telket ajánl fel a figyelmébe Lip területen b...
» Hasonló ajánlatok Telek eladó on Cluj-napoca, Zóna Manastur