Ez az ajánlat már nem érhető el.
Személyre szabott ajánlatért lépjen kapcsolatba az ügynökkel, vagy látogasson el hasonló ajánlatokra.
Lásd a hasonló ajánlatokat
Hasonló ajánlatok
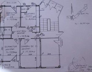
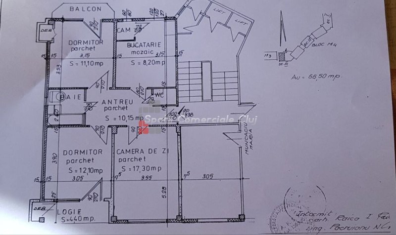
3 szobás lakás (63 nm) csendes környéken, az ortodox templom közelében.
Néhány percre található a...
» 3 camere, 1 konyha, 1 fürdőszoba, 63 m2
Új ingatlanprojektet kínálunk Floresti legkönnyebben megközelíthető részén, a Tineretului utcában, Szamos köz...
» 3 camere, 1 konyha, 1 fürdőszoba, 66.15 m2
A Spatii Comerciale Cluj felhívja a figyelmét egy lakás megvásárlásának lehetőségére az Eroilor negyedben, cse...
» 3 camere, 1 konyha, 1 fürdőszoba, 60 m2
A Spatii Comerciale Cluj eladásra kínál egy 2 szobás (nappali, konyha, hálószoba, fürdőszoba, terasz) lakást, a...
» 3 camere, 1 konyha, 1 fürdőszoba, 45 m2
A Spatii Comerciale Cluj örömmel kínál eladásra egy 3 szobás lakást Kolozsváron, Szászfenesén (Floresti).
» 3 camere, 1 konyha, 1 fürdőszoba, 57.6 m2
Új ingatlanprojektet kínálunk Floresti központi részén, az Eroilor utcában, a leendő bevásárlóközpont közel...
» 3 camere, 1 konyha, 2 Fürdők száma, 67.16 m2