A Spatii Comerciale Cluj közvetít egy telek eladását Salicea (Szelicsea) beépített területén, Kolozsvár város...
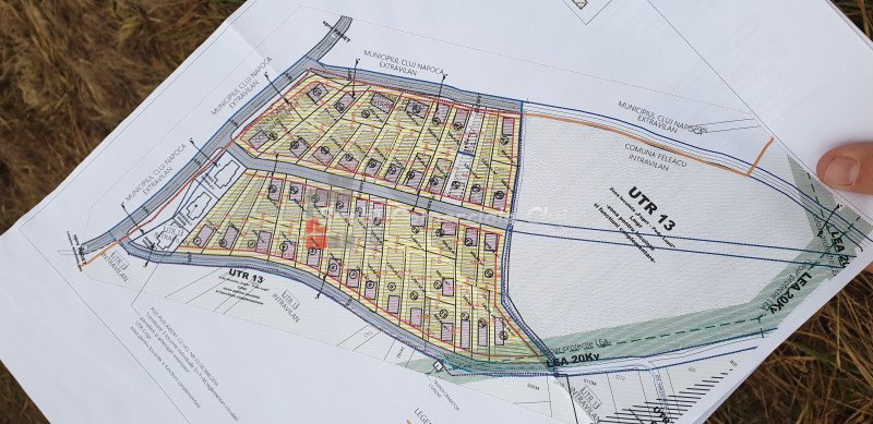
Lehetőség telekvásárlásra Saliceában - építési engedéllyel! Festői környezetben található, városi t...
A Spatii Comerciale Cluj közvetít egy 5800 m² összterületű telek eladását, amely Kolozs megye Chinteni község...
A Spatii Comerciale Cluj közvetít egy telek eladását Kolozsvár egyik legkedveltebb negyedében, a Grigorescu negyed...
Érdekel a mezőgazdasági befektetés? Arra gondol, hogy forrásokhoz jusson a mezőgazdasági tevékenységekhez? eur...
A Welt imobiliare közvetít egy telek eladását, amely Bács község beépített területén, Mera faluban találhat...
» Hasonló ajánlatok Telek eladó on Cluj-napoca, Zóna Faget