A Spatii Comerciale Cluj közvetít egy 1500 m² összterületű telek eladását, amely Kolozsvár városrészében, So...
A Welt Real Estate kizárólag a Dezmirben, a Padurii utcában található, lakásépítésre alkalmas városi telek ér...
Érdekel egy építkezésre alkalmas telek? A Spatii Comerciale Cluj felhívja a figyelmet egy építésre alkalm...
Kolozsvár felett, a Faget-erdő zöld függönye védi? A Spatii Comerciale Cluj szeretné felhívni a figyelm...
Lehetőség telekvásárlásra Saliceában - építési engedéllyel! Festői környezetben található, városi t...
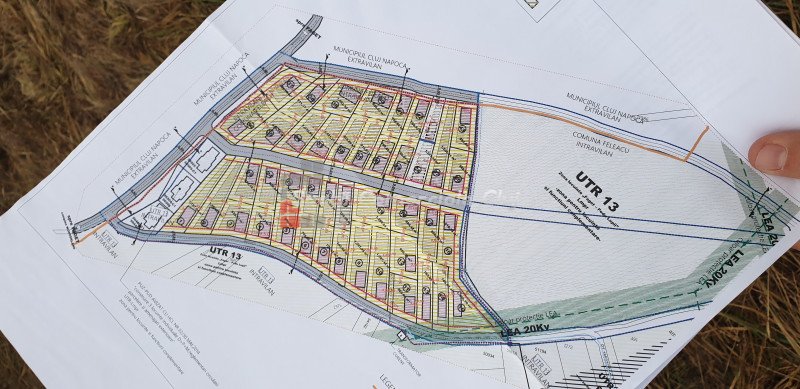
A Spatii Comerciale Cluj közvetít egy 5800 m² összterületű telek eladását, amely Kolozs megye Chinteni község...
» Hasonló ajánlatok Telek eladó on Cluj-napoca, Zóna Faget