Ez az ajánlat már nem érhető el.
Személyre szabott ajánlatért lépjen kapcsolatba az ügynökkel, vagy látogasson el hasonló ajánlatokra.
Lásd a hasonló ajánlatokat
Hasonló ajánlatok
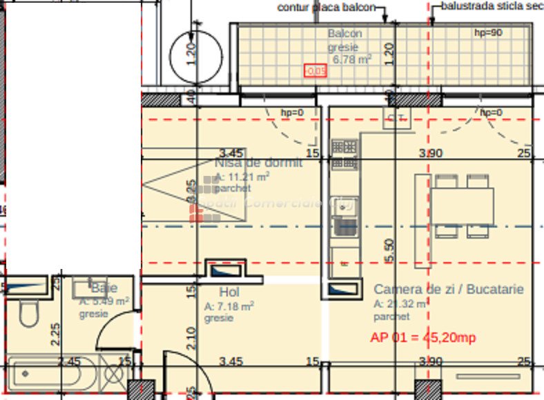
2 szobás lakás, hasznos alapterület 52nm + 2 erkély, egyenként 4,80nm és 3,80nm
A Spatii Comerciale C...
» 2 camere, 1 konyha, 1 fürdőszoba, 52 m2
A Spatii Comerciale Cluj eladásra kínál egy kétszobás lakást Florestiben, a Florilor utcában, a Mega Image üzlet...
» 2 camere, 1 konyha, 1 fürdőszoba, 44 m2
A Spatii Comerciale Cluj eladásra kínál egy különálló lakást a Traian utcában, Kolozsvár történelmi központ...
» 2 camere, 1 konyha, 1 fürdőszoba, 30 m2
A Spatii Comerciale Cluj örömmel kínál eladásra egy 2 szobás lakást, melynek hasznos alapterülete 42 nm, kiegés...
» 2 camere, 1 konyha, 1 fürdőszoba, 42 m2
A Spatii Comerciale Cluj eladásra kínál egy 38,2 négyzetméter hasznos alapterületű lakást Floresti Florilor negy...
» 2 camere, 1 konyha, 1 fürdőszoba, 38.2 m2
Eladásra kínálunk egy új liftes épületben található, Floresti, Aqua Park területén található bútorozott lak...
» 2 camere, 1 konyha, 1 fürdőszoba, 60 m2