Egy projekt Welt Imobiliare
Romana
English
Francaise
Magyar
tranzakció:
megvesz
bérlés
KERES:
Válassz típust
Rentábilis
Irodák
Csarnokok
Kereskedelmi
Ban:
Válassza ki a várost
Cluj-Napoca
Andrei Muresanu
Apahida
Baciu
Becas
Borhanci
Bulgaria
Buna Ziua
Centru
Dambul Rotund
Europa
Faget
Floresti
Gara
Gheorgheni
Grigorescu
Gruia
Intre Lacuri
Iris
Manastur
Marasti
Plopilor
Someseni
Sopor
Zorilor
További városok
Micesti
Caseiu
Mica
Salistea Veche
Moldovenesti
Capusu Mic
Gherla
Martinesti
Faureni
Ceanu Mic
Gheorghieni
Jucu de Mijloc
Poiana Horea
Luna de Jos
Fundatura
Aghiresu
Dej
Huedin
Salicea
Dosu Napului
Lita
Deusu
Vultureni
Mintiu Gherlii
Manastireni
Smida
Floresti
Marisel
Turda
Corusu
Balcesti (Belis)
Stolna
Ciurila
Gadalin
Jucu
Viisoara
Catcau
Panticeu
Calatele
Savadisla
Campia Turzii
Somesu Cald
Satu Lung
Cara
Apahida
Livada (Iclod)
Somesu Rece
Juc-Herghelie
Sancraiu
Padureni (Chinteni)
Comsesti
Bucea
Cojocna
Tureni
Filea de Sus
Sub Coasta
Mera
Capusu Mare
Gilau
Dumbrava
Aiton
Soimeni
Suceagu
Belis
Moristi
Dezmir
Filea de Jos
Visea
Luna de Sus
Tauti
Muntele Baisorii
Sanmartin
Macicasu
Ocna Dejului
Mihai Viteazu
Vlaha
Rascruci
Corpadea
Rediu
Caianu
Tarnita
Nadaselu
Campenesti
Elciu
Iclozel
Dangau Mic
Maguri-Racatau
Jucu de Sus
Bontida
Radaia
Huta
Pata
Giurcuta de Jos
Iclod
Dealu Mare
Sacalaia
Sanpaul
Valea Draganului
Chinteni
Saliste
Suatu
Salistea Noua
Valea Ierii
Baisoara
Aschileu Mic
Luna
Rasca
Finisel
Valcele
Popesti
Livada (Petrestii de Jos)
Tranisu
Boldut
Dealu Negru
Sannicoara
Feiurdeni
Barai
Baciu
Feleacu
Ár:
Válassza ár
Ár -tól
a
ID:
Menü
Új ajánlatok
irodák
Bérbeadás
Eladó
Uzlethelyiségek
Bérbeadás
Eladó
Ipari Helyiségek
Bérbeadás
Eladó
Kérjen ajánlatot
Ajánlat hozzáadás
Kedvenc ajánlatok
Otthon
»
»
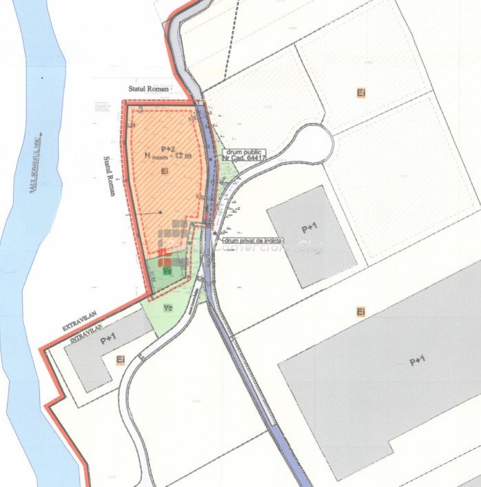
, 9900m2 on Apahida ID: P30726
Ez az ajánlat már nem érhető el.
Személyre szabott ajánlatért lépjen kapcsolatba az ügynökkel, vagy látogasson el hasonló ajánlatokra.
Lásd a hasonló ajánlatokat
, 9900m
2
on Apahida
Ár:
ID: P30726
Jellemzők
Ingatlan típusa:
Hasznos terület:
9900 m
2
Helyiségek száma:
--
Fürdők száma:
--
Parkolók száma:
--
Garázsok száma:
--
Ingatlan megnevezése:
--
Emelet:
Tartószerkezet a:
--
Építési év:
--
Beépített terület:
--
Telek területe:
--
Udvar területe:
--
» Hasonló ajánlatok Telek eladó on Apahida
Kapcsolat ingatlanügynökség
Telefon:
0364 644 644
E-mail
:
office@spatiicomercialecluj.ro
Kapcsolatfelvételi űrlap
Vezetéknév:
Telefon:
E-mail:
Üzenet:
Érdekel az P30726 ID-számú ajánlat. Kérem, vegye fel velem a kapcsolatot.
Sunt de acord cu prelucrarea datelor mele personale conform
Politicii de Confidentialitate