Ez az ajánlat már nem érhető el.
Személyre szabott ajánlatért lépjen kapcsolatba az ügynökkel, vagy látogasson el hasonló ajánlatokra. Lásd a hasonló ajánlatokat

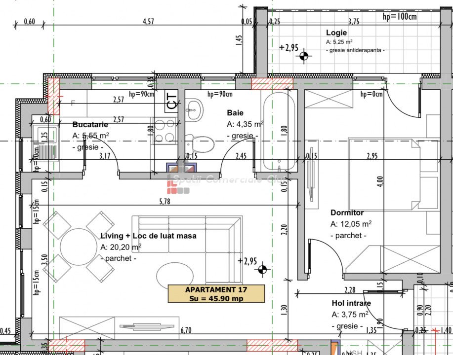
, 45.9m2 on Floresti

Ár:
ID: P31753
Érdekel az ajánlat Hozzáad a Kedvencekhez
Jellemzők
Ingatlan típusa:
Hasznos terület:
45.9 m2
Helyiségek száma:
--
Fürdők száma:
--
Parkolók száma:
--
Garázsok száma:
--
Ingatlan megnevezése:
--
Emelet:
Tartószerkezet a:
--
Építési év:
--
Beépített terület:
--
Telek területe:
--
Udvar területe:
--
Kapcsolat ingatlanügynökség

Kapcsolatfelvételi űrlap

Vezetéknév:
Telefon:
E-mail:
Üzenet: