Ez az ajánlat már nem érhető el.
Személyre szabott ajánlatért lépjen kapcsolatba az ügynökkel, vagy látogasson el hasonló ajánlatokra.
Lásd a hasonló ajánlatokat
Hasonló ajánlatok
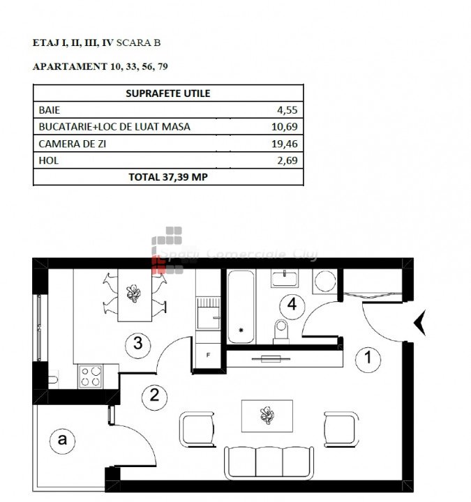
A Spatii Comerciale Cluj eladásra kínál egy egyszobás lakást a Dambul Rotund negyedben.
A 45 nm-es has...
» 1 szoba, 1 konyha, 1 fürdőszoba, 45 m2
A Spatii Comerciale Cluj eladásra kínál egy különálló, befejezett, egyszobás lakást egy gyorsan fejlődő körn...
» 1 szoba, 1 konyha, 1 fürdőszoba, 38 m2
A Spatii Comerciale Cluj eladásra kínál egy különálló, 1 szobás lakást Baciuban, a Petrom negyedben.
» 1 szoba, 1 konyha, 1 fürdőszoba, 36 m2
Eladásra kínálunk egy ultracentrális helyen található lakást, amely ideális azok számára, akik a város össze...
» 1 szoba, 1 konyha, 1 fürdőszoba, 20 m2
A Spatii Comerciale Cluj egy kiváló, egyszobás lakást kínál a Dambul Rotund negyedben, egy különleges lakóparkb...
» 1 szoba, 1 konyha, 1 fürdőszoba, 43 m2
Örömmel kínálunk Önnek egy lakást eladásra a prémium környéken, a Dorobantilor utcában, nagyon csendes helyen...
» 1 szoba, 1 konyha, 1 fürdőszoba, 23 m2