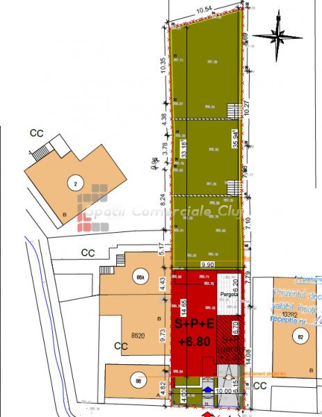
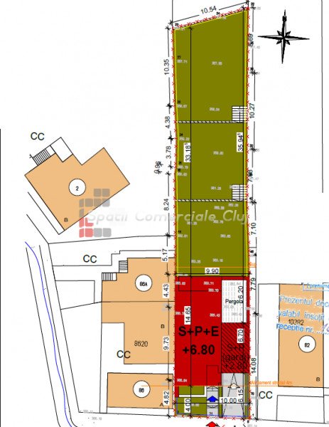
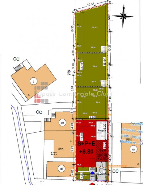
Eladó telek a Sopor kerületben, Kolozsváron. Területe 1800 négyzetméter, homlokzata 30 négyzetméter.
Érdekel a fejlesztés a nagyvárosban? A Spatii Comerciale Cluj felhívja az Ön figyelmét arra a lehetőségre...
A Spatii Comerciale Cluj felhívja a figyelmet 2,9 ha erdő megvásárlásának lehetőségére Padureniben (Chinteni).<...
A Spatii Comerciale Cluj lehetőséget kínál Önnek egy 17070 négyzetméteres telek megvásárlására az APUSENI-heg...
Eladó telek Soporban, a Mos Ion Roata temető után. A telek szabad tulajdoni lappal van bejegyezve, a Tar...
Befektetési lehetőség Kolozsvár egyik legdinamikusabb részén, Borhanciban. Nagy alapterületű belterületi telek ...
» Hasonló ajánlatok Telek eladó on Cluj-napoca, Zóna Gruia