Ez az ajánlat már nem érhető el.
Személyre szabott ajánlatért lépjen kapcsolatba az ügynökkel, vagy látogasson el hasonló ajánlatokra.
Lásd a hasonló ajánlatokat
Hasonló ajánlatok
A Spatii Comerciale Cluj eladásra kínál egy modern, befejezett stúdiólakást egy 4 emeletes épület földszintjén...
» 1 szoba, 1 konyha, 1 fürdőszoba, 21 m2
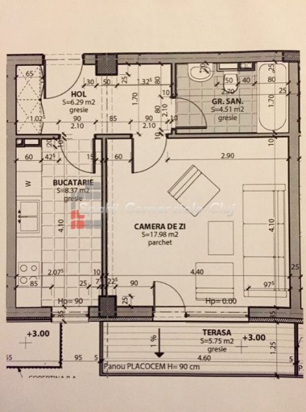
Különálló 1 szobás lakás, Hasznos terület 38nm + terasz 13nm.
A Spatii Comerciale Cluj új, 1-2 és ...
» 1 szoba, 1 konyha, 1 fürdőszoba, 38 m2
A Spatii Comerciale Cluj eladásra kínál egy kész, hőszigetelt garzonlakást egy 4 emeletes épület 2. emeletén, M...
» 1 szoba, 1 konyha, 1 fürdőszoba, 21 m2
Eladó stúdiólakás Kolozsváron | Intre Lacuri kerület | Fujikura környéke.
A stúdiólakás a 4. eme...
» 1 szoba, 1 fürdőszoba, 15 m2
A Spatii Comerciale Cluj megvételre kínál egy földszint + 3 emelet + padlás + padlás tetőtérben található lak...
» 1 szoba, 1 konyha, 1 fürdőszoba, 36 m2
A Spatii Comerciale Cluj eladásra kínál egy garzonlakást, amely kiváló közlekedési kapcsolatokkal rendelkező k...
» 1 szoba, 1 konyha, 1 fürdőszoba, 17 m2