Ez az ajánlat már nem érhető el.
Személyre szabott ajánlatért lépjen kapcsolatba az ügynökkel, vagy látogasson el hasonló ajánlatokra.
Lásd a hasonló ajánlatokat
Hasonló ajánlatok
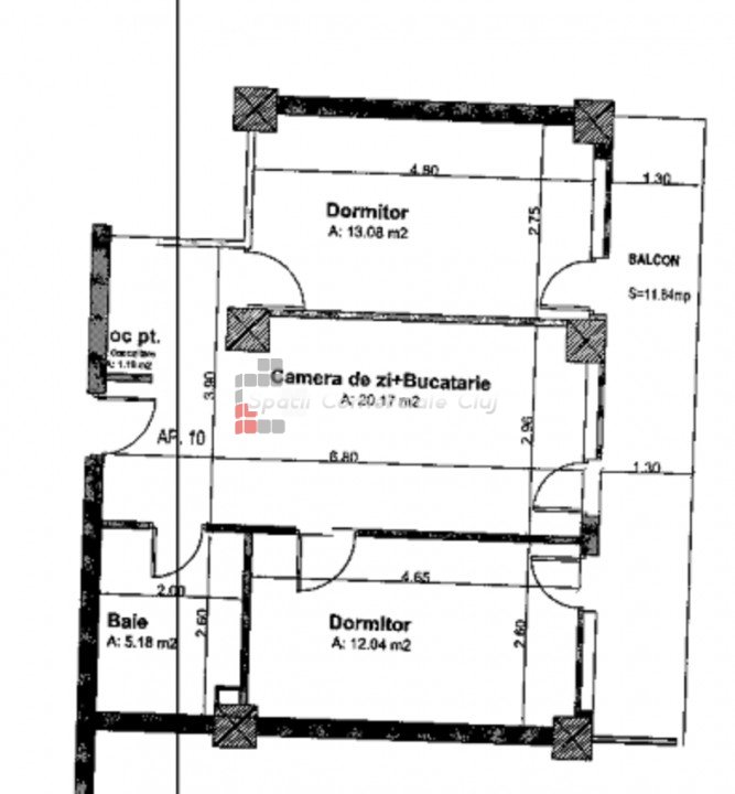
A Spatii Comerciale Cluj örömmel kínálja megvételre Floresti-ben, a Porii utcában található lakását.
» 3 camere, 1 konyha, 2 Fürdők száma, 78 m2
Eladásra kínálunk egy 3 szobás lakást Floresti-ben, egy 4 emeletes épület 1. emeletén.
A lakás befejezett...
» 3 camere, 1 konyha, 1 fürdőszoba, 64 m2
Eladásra kínálunk egy 3 szobás lakást egy 4 emeletes épület alagsorában a Napoca utcában.
A lakás...
» 3 camere, 1 konyha, 2 Fürdők száma, 91 m2
Eladásra kínálunk egy tágas, 3 szobás, teljesen berendezett és befejezett, különálló lakást Florești csendes...
» 3 camere, 1 konyha, 1 fürdőszoba, 65 m2
A Spatii Comerciale Cluj egy 3 szobás, 1. emeleti lakást kínál Florești Eroilor negyedében, nagyon jó helyen, az ...
» 3 camere, 1 konyha, 1 fürdőszoba, 56 m2
3 szobás lakás, hasznos alapterület 72nm, 2 hálószoba, az egyik saját fürdőszobával + 10nm terasz!!
» 3 camere, 1 konyha, 2 Fürdők száma, 72 m2