Ez az ajánlat már nem érhető el.
Személyre szabott ajánlatért lépjen kapcsolatba az ügynökkel, vagy látogasson el hasonló ajánlatokra. Lásd a hasonló ajánlatokat

Hasonló ajánlatok

  • , 68m2 on Cluj-napoca

    , 68m2 on Cluj-napoca

    Kiadó egy modern, kétszobás lakás a Bună Ziua negyedben, egy kétszintes épület 2. emeletén. A lakás nemrég fe...

    » 2 camere, 1 konyha, 1 fürdőszoba, 68 m2
  • , 50m2 on Cluj-napoca

    , 50m2 on Cluj-napoca

    Kiadó egy kétszobás lakás egy csendes, félig központi környéken. A lakás a 4. emeleten található egy 1990-ben...

    » 2 camere, 1 konyha, 1 fürdőszoba, 50 m2
  • , 50m2 on Cluj-napoca, Zóna Buna Ziua

    , 50m2 on Cluj-napoca, Zóna Buna Ziua

    A Spatii Comerciale Cluj kiadó egy különálló, kétszobás lakás, amely kellemes és jól karbantartott teret kín...

    » 2 camere, 1 konyha, 1 fürdőszoba, 50 m2
  • , 59m2 on Cluj-napoca, Zóna Gheorgheni

    , 59m2 on Cluj-napoca, Zóna Gheorgheni

    A Spatii Comerciale Cluj egy gyönyörű, kétszobás lakást kínál bérbe a Gyergyószentmiklósi negyedben, a VIVIDO...

    » 2 camere, 1 konyha, 1 fürdőszoba, 59 m2
  • , 75m2 on Cluj-napoca

    , 75m2 on Cluj-napoca

    Kiadó 2 szobás lakás az Ultracentrala negyedben. A lakás hasznos alapterülete 75 nm, és a 2. emeleten található....

    » 2 camere, 1 konyha, 2 Fürdők száma, 75 m2
  • , 65m2 on Cluj-napoca, Zóna Manastur

    , 65m2 on Cluj-napoca, Zóna Manastur

    Kiadó egy kétszobás, fokozott komfortú lakás egy társasházban, Manasturban, a Calvaria negyedben, az épület els...

    » 2 camere, 1 konyha, 1 fürdőszoba, 65 m2
  • , 55m2 on Cluj-napoca, Zóna Borhanci

    Ár: 600 €/hónap
    ID: P47472
    Érdekel az ajánlat Hozzáad a Kedvencekhez
    Jelenleg bérelt
    Jellemzők
    Ingatlan típusa:
    Hasznos terület:
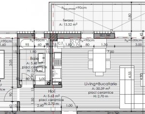
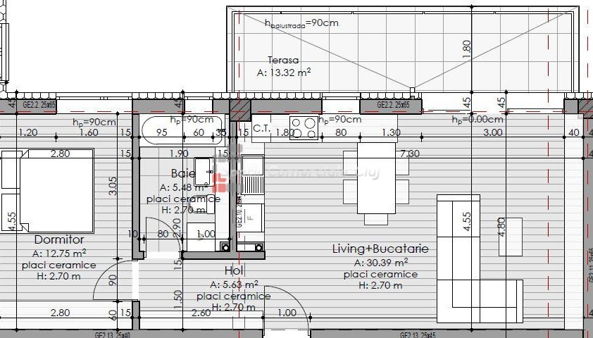
    55 m2
    Helyiségek száma:
    --
    Fürdők száma:
    --
    Parkolók száma:
    --
    Garázsok száma:
    --
    Ingatlan megnevezése:
    --
    Emelet:
    Tartószerkezet a:
    --
    Építési év:
    --
    Beépített terület:
    --
    Telek területe:
    --
    Udvar területe:
    --
    Kapcsolat ingatlanügynökség

    Kapcsolatfelvételi űrlap

    Vezetéknév:
    Telefon:
    E-mail:
    Üzenet: