Ez az ajánlat már nem érhető el.
Személyre szabott ajánlatért lépjen kapcsolatba az ügynökkel, vagy látogasson el hasonló ajánlatokra.
Lásd a hasonló ajánlatokat
Hasonló ajánlatok
Kiadó „A” kategóriás irodaterület a Brico Depot és az új Lidl áruház mögötti irodaházban a Colinei utcáb...
» Iroda kategóriák A, 1 szoba, 300 m2
Bemutatok Önnek egy irodaterületet egy irodaházban, az FSEGA és az Iulius Mall közelében.
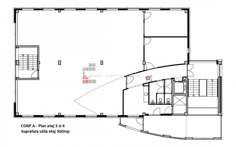
300 nm-es alapter...
» Iroda kategóriák A, 1 szoba, 300 m2
A Spatii Comerciale Cluj irodák és egyéb tevékenységek céljából kiad házat Kolozsváron, a Hasdeu negyedben, a ...
» 5 camere, 200 m2
Bérelésre kínálok egy A osztályú irodahelyiséget a Vivo-Polus körzetben található Business Centerben.
A...
» Iroda kategóriák A, 1 szoba, 324 m2
Jellemzők
Ingatlan típusa:
cladire de birouri
Beépített terület:
385 m2
Közművek
Általános közművek: Villanyáram, Háromfázisú áram, Víz, Csatornázás
Klimatizálás: Légkondicionált