Un projet Welt Imobiliare
Romana
English
Francaise
Magyar
Transaction:
acheter
louer
Cherche:
Choisissez le type de
Comercial
Bureaux
Salle
Commercial
En:
Sélectionnez la ville
Cluj-Napoca
Andrei Muresanu
Apahida
Baciu
Becas
Borhanci
Bulgaria
Buna Ziua
Centru
Dambul Rotund
Europa
Faget
Floresti
Gara
Gheorgheni
Grigorescu
Gruia
Intre Lacuri
Iris
Manastur
Marasti
Plopilor
Someseni
Sopor
Zorilor
D'autres villes
Micesti
Caseiu
Mica
Salistea Veche
Moldovenesti
Capusu Mic
Gherla
Martinesti
Faureni
Ceanu Mic
Gheorghieni
Jucu de Mijloc
Poiana Horea
Luna de Jos
Fundatura
Aghiresu
Dej
Huedin
Salicea
Dosu Napului
Lita
Deusu
Vultureni
Mintiu Gherlii
Manastireni
Smida
Floresti
Marisel
Turda
Corusu
Balcesti (Belis)
Stolna
Ciurila
Gadalin
Jucu
Viisoara
Catcau
Panticeu
Calatele
Savadisla
Campia Turzii
Somesu Cald
Satu Lung
Cara
Apahida
Livada (Iclod)
Somesu Rece
Juc-Herghelie
Sancraiu
Padureni (Chinteni)
Comsesti
Bucea
Cojocna
Tureni
Filea de Sus
Sub Coasta
Mera
Capusu Mare
Gilau
Dumbrava
Aiton
Soimeni
Suceagu
Belis
Moristi
Dezmir
Filea de Jos
Visea
Luna de Sus
Tauti
Muntele Baisorii
Sanmartin
Macicasu
Ocna Dejului
Mihai Viteazu
Vlaha
Rascruci
Corpadea
Rediu
Caianu
Tarnita
Nadaselu
Campenesti
Elciu
Iclozel
Dangau Mic
Maguri-Racatau
Jucu de Sus
Bontida
Radaia
Huta
Pata
Giurcuta de Jos
Iclod
Dealu Mare
Sacalaia
Sanpaul
Valea Draganului
Chinteni
Saliste
Suatu
Salistea Noua
Valea Ierii
Baisoara
Aschileu Mic
Luna
Rasca
Finisel
Valcele
Popesti
Livada (Petrestii de Jos)
Tranisu
Boldut
Dealu Negru
Sannicoara
Feiurdeni
Barai
Baciu
Feleacu
Prix:
Choisissez prix
Prix à partir de
a
ID:
Menu
Nouvelles offres
Bureaux
Louer
Vente
Espaces Commerciaux
Louer
Vente
Espaces Industriels
Louer
Vente
Demander une offre
Rajoute offre
Offres favorites
Première page
»
»
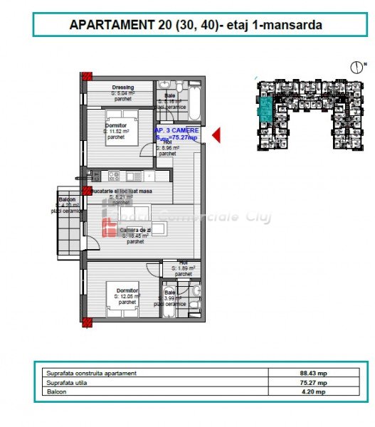
, 75.27m2 dans Floresti ID: P5352
Cette offre n'est plus disponible.
Contactez l'agent pour une offre personnalisée ou visitez des offres similaires.
Voir des Offres Similaires
, 75.27m
2
dans Floresti
Prix:
ID: P5352
Caractéristiques
Type immeuble:
Surface utile:
75.27 m
2
Non. chambres:
--
Salles de bains:
--
Non. parking:
--
Non. garages:
--
Nom de l’immeuble:
--
Etage:
Struct. résistance de:
--
Année de construction:
--
Surface construite:
--
Surface terrain:
--
Surface court:
--
» Offres similaires Appartement 3 chambres à vendre dans Floresti
Contacter l'agence
Téléphone:
0364 644 644
Email
:
office@spatiicomercialecluj.ro
Formulaire de contact
Nom:
Téléphone:
Email:
Message:
Je suis interesse de l'offre avec ID: P5352. Je vous en prie de me contacter
Sunt de acord cu prelucrarea datelor mele personale conform
Politicii de Confidentialitate