

Utilitati generale: Electricitate, Curent trifazic, Gaz, Canalizare, Cablu TV
Climatizare: Aer conditionat
Internet: Fibra optica
Finisaje:Izolatii termice (Exterior), Podele (Gresie), Stare interior (Buna), Ferestre cu geam termopan (Aluminiu), Iluminat (Spoturi, Aplice, Exterior cladire, Lumina naturala)
Dotari: Contorizare (Apometre, Contor gaz), Dotari imobil (Gradina, Interfon, Lift), CFR
Amenajare strazi (Asfaltate)
Vecinatati: Piata Unirii
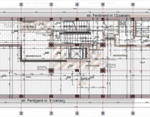
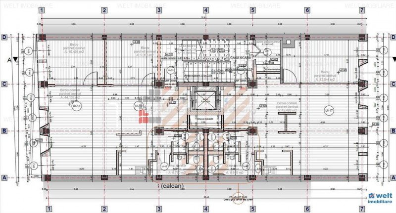
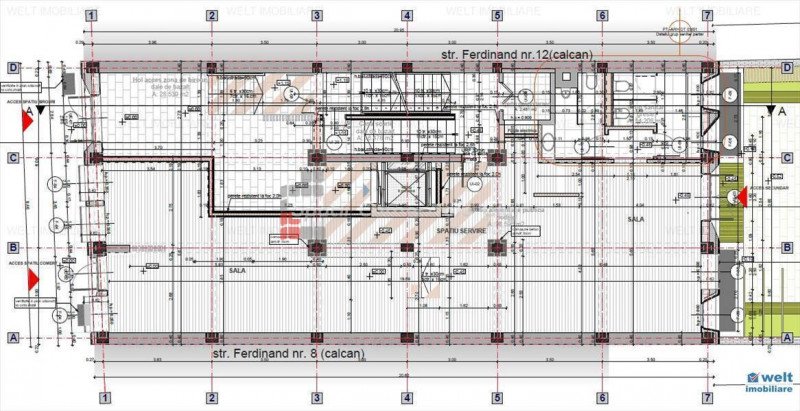
Va propunem spre inchiriat, o cladire ultramoderna de birouri in zona 0 a Clujului in zona Piata Unirii. Cladirea este stucturata pe 8 niveluri: D+P+5E+M. Suprafata utila este de 1407 mp. Se pot inchiria suprafete incepand cu 84 mp. Dotariile imobilului sunt de inalta calitate beneficiind de fatada ventilata de tip TrespaUniRock, finisaje moderne: greso-granit pe toate spatiile comune, instalatii de racire/incalzire racordate la chillere, generator propriu. Cladirea este prevazuta cu lift ultramodern. pretinchiriereunitar: 13 monedainchiriereunitar: EUR