
Utilitati generale: Electricitate, Curent trifazic, Apa, Gaz, Canalizare, Telefon
Sistem de incalzire: Centrala termica, Calorifere
Climatizare: Aer conditionat
Internet: Fibra optica
Finisaje:Izolatii termice (Exterior), Podele (Gresie, Marmura, Parchet), Stare interior (Renovat), Ferestre cu geam termopan (PVC), Iluminat (Lampi, Spoturi, Aplice, Exterior cladire, Lumina naturala)
Dotari: Contorizare (Apometre, Contor gaz), Dotari imobil (Curte, Gradina, Interfon, Lift, Spatii agrement), CFR
Servicii imobil (Paza, Supraveghere video)
Amenajare strazi (Asfaltate, Pietruite)
Vecinatati: case, vile, cartier nou rezidential
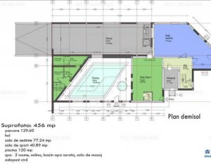
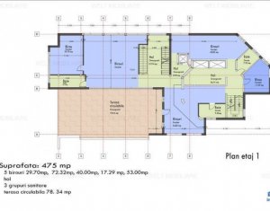
Imobil de birouri spre inchiriere in suprafata totala de 2.043mp situat in Zorilor, partea rezidentiala de case noi, cu foarte multe facilitati si extra, dintre care amintim spa cu 2 jacuzzi, sauna umeda, uscata, salina, bazin apa sarata, bazin cu gheata, piscina cu badujet si perdea apa (inot contra curent folosit de sportivi pt competitii iron man), sala sport amenajata fitness si cardio, sala masaj, lift, gradina amenajata cu iaz cu cascade si pesti, sistem de irigatii cu senzori de ploaie si programator umezeala, foisor cu bucataria deschisa si salon, barbeque, balansoar... Dispune deasemeni de 8 parcari subterane, 4 in curte si 10 pe front. In total 6 terase cu vedere spre tot orasul. Locatie deosebita pentru clinica, centru healthcare, recuperare sportiva. Informatii suplimentare si vizite la cerere. pretinchiriere: 10500 monedainchiriere: EUR