

Utilitati generale: Electricitate, Curent trifazic, Apa, Canalizare
Sistem de incalzire: Calorifere
Finisaje:Podele (Parchet, Gresie), Stare interior (Buna), Ferestre cu geam termopan (PVC, Lemn), Iluminat (Lampi, Spoturi, Aplice, Exterior cladire, Lumina naturala)
Amenajare strazi (Asfaltate), Iluminat stradal, Mijloace de transport in comun
Vecinatati: Dedeman, Liberty Tehnology Park
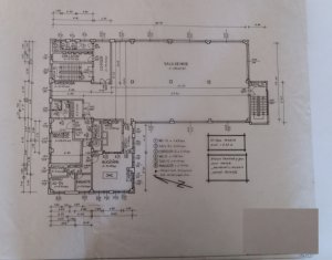
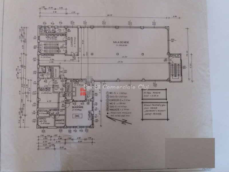
De inchiriat spatiu microproductie, industrie textila, catering, sau alte activitati similare. Situat in zona Garii intre Dedeman si Liberty Park. Spatiul este situat la etajul unei cladiri, 2 cai de acces pe scari separate, lift de marfa de 500kg. Este compartimentat in sala de productie 290mp, grupuri sanitare, birouri si spatii de depozitare totalizand 400mp. Curent trifazic, incalzire cu centrala termica pe gaz. Locuri de parcare in curte, acces camion si TIR. Disponibil imediat