
Utilitati generale: Electricitate, Curent trifazic, Apa, Gaz, Canalizare
Sistem de incalzire: Centrala termica, Calorifere
Climatizare: Aer conditionat
Finisaje:Izolatii termice (Interior), Podele (Parchet), Ferestre cu geam termopan (PVC), Iluminat (Spoturi, Aplice)
Dotari: Contorizare (Apometre, Contor gaz), Dotari imobil (Interfon)
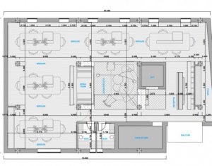
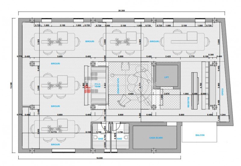
Spatiul este situat ultracentral, in apropierea magazinului Sora, Piata Unirii, intr-un imobil cu prestanta. Acesta are urmatoarele caracteristici: - supratat utila 240 mp; - etaj 1 din 2; - interior complet renovat si amenajat dupa un design modern, industrial, precum si infrastructura refacuta complet; - strada linistita, fara trafic auto intens; - statie de bus la 200 de m, cu acces din toate zonele orasului; - posibilitate de inchiriere locuri de parcare in multiplex Leul, care este la 400 m de acest spatiu; - spatiul este la prima inchiriere si este ideal pentru o firma de IT.