

Utilitati generale: Electricitate, Apa, Gaz, Canalizare
Sistem de incalzire: Centrala termica, Calorifere
Climatizare: Aer conditionat
Finisaje:Izolatii termice (Exterior), Podele (Parchet), Ferestre cu geam termopan (PVC), Iluminat (Lampi, Spoturi, Aplice, Exterior cladire, Lumina naturala)
Dotari: Contorizare (Apometre, Contor gaz), Dotari imobil (Curte comuna), Spatiu depozitare
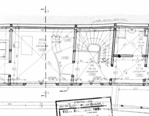
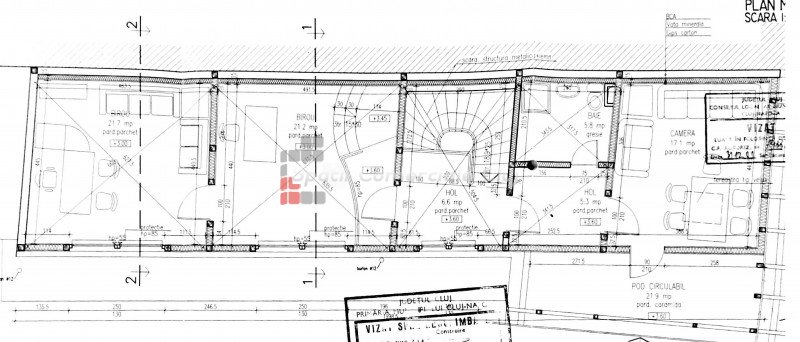
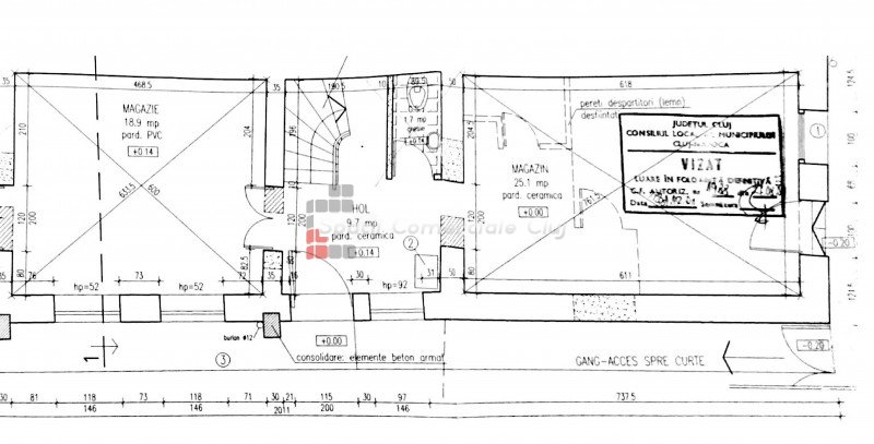
De inchiriat un spatiu ideal pentru activitati de birouri, situat in centrul orasului in zona Casa Boema, hotel Victoria. Suprafata totala este de 180 mp si se imparte la pe parter cu un magazin la strada 26mp cu intrare directa, un depozit de 60mp si mansarda compusa din un birou si spatiu open space in suprafata de 90mp, fiecare etaj avand grup sanitar propriu. Accesul se poate face atat din strada direct (bun pentru clienti) cat si din gang. Proprietatea se potriveste societatilor care au si contact direct cu clientii si care cauta si un magazin de prezentare, avand destinatie comerciala si birouri in acte. Pentru informatii suplimentare nu ezitati sa ma contactati.