

Utilitati generale: Electricitate, Apa, Gaz, Canalizare, Telefon
Sistem de incalzire: Centrala termica
Finisaje:Podele (Gresie, Linoleum), Ferestre cu geam termopan (PVC), Iluminat (Spoturi)
Dotari: Contorizare (Apometre, Contor gaz), Parcare proprie
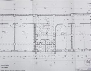
Spatii Comerciale Cluj va propune spre inchiriere un spatiu de birouri in cartierul Iris. Spatiul este foarte bine izolat, luminos, poate sa fie amenajat pentru birouri sau comert online (inclusiv spatiu pentru locuit), este foarte usor de intretinut, cheltuielile de intretinere fiind minime, statia de tramvai este foarte aproape, este pozitionat la 2 km distanta de centru. Spatiul are o suprafata totala de 150 mp utili, compus din: - 5 camere pentru birouri cu suprafete diferite, - 2 grupuri sanitare, - 1 oficiu, - 1 terasa. Se poate folosi pentru diferite tipuri de afaceri atat de productie, cat si de depozitare sau desfasurare activitati specifice (sali de curs, gradinita, birou, depozit, spatiu de locuit). Spatiul este amplasat la parterul si etajul 1 al unui imobil P+2E+M.