
Utilitati generale: Electricitate, Curent trifazic, Apa, Gaz, Canalizare
Climatizare: Aer conditionat
Finisaje:Ferestre cu geam termopan (PVC), Iluminat (Lampi, Spoturi, Aplice, Exterior cladire, Lumina naturala)
Amenajare strazi (Asfaltate), Iluminat stradal, Mijloace de transport in comun
Vecinatati: Zona Industriala Nord, CUG, Bd Muncii
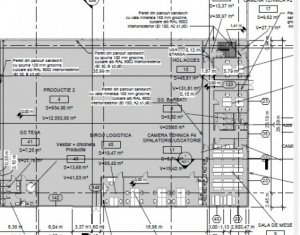
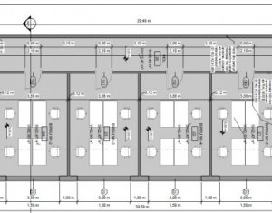
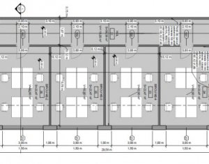
De inchiriat o hala nou construita situata pe Bulevardul Muncii, zona industriala Nord. Hala are o suprafata utila de 1.000mp, inaltime 12m, incalzire in pardoseala, iluminat LED, posibilitate de pod rulant cu capacitate peste 40to! Birouri etaj 1 si etaj 2, in suprafata totala de 400mp, finisat la cheie. Hala este la nivelul solului, usa de acces sectionala si usa pietonala. Compartimentari interioare conform proiect, posibilitate de adaptare a spatiului in functie de specificul activitatii. Locuri de parcare in jurul halei. Trifazic de mare putere, utilitati la debit industrial.