
Utilitati generale: Electricitate, Curent trifazic, Apa, Gaz, Canalizare
Sistem de incalzire: Centrala termica, Calorifere
Climatizare: Aer conditionat
Finisaje:Izolatii termice (Exterior), Podele (Linoleum), Ferestre cu geam termopan (PVC), Iluminat (Lampi, Spoturi, Aplice, Exterior cladire, Lumina naturala)
Dotari: Contorizare (Apometre, Contor gaz), Dotari imobil (Curte)
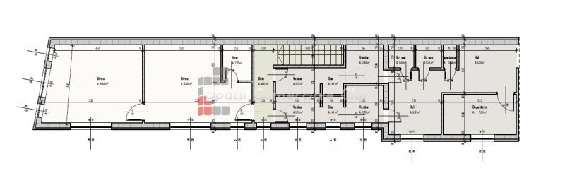
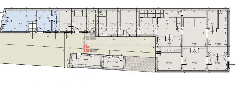
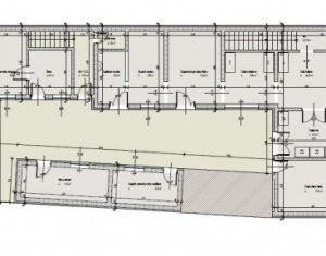
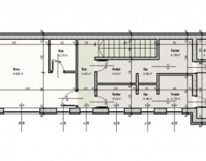
Spațiu semi-central, autorizat pentru producție panificație, catering, alimentar, compus din: vestiare, filtre, birou, depozite, producție, conform normelor sanitar - veterinare in vigoare. Acces auto in curte individuală. Spațiile totalizează o suprafața de 280 mp și o curte de 6 locuri de parcare, acces mașina de 12 tone. Preț închiriere împreuna cu utilaje producție panificație la cheie 3500€ + TVA