

Utilitati generale: Electricitate, Apa, Gaz, Canalizare
Sistem de incalzire: Centrala termica, Calorifere
Finisaje:Izolatii termice (Exterior), Podele (Parchet, Gresie), Ferestre cu geam termopan (PVC), Iluminat (Spoturi, Exterior cladire, Lumina naturala)
Dotari: Contorizare (Apometre, Contor gaz), Dotari imobil (Interfon, Lift), CFR
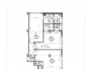
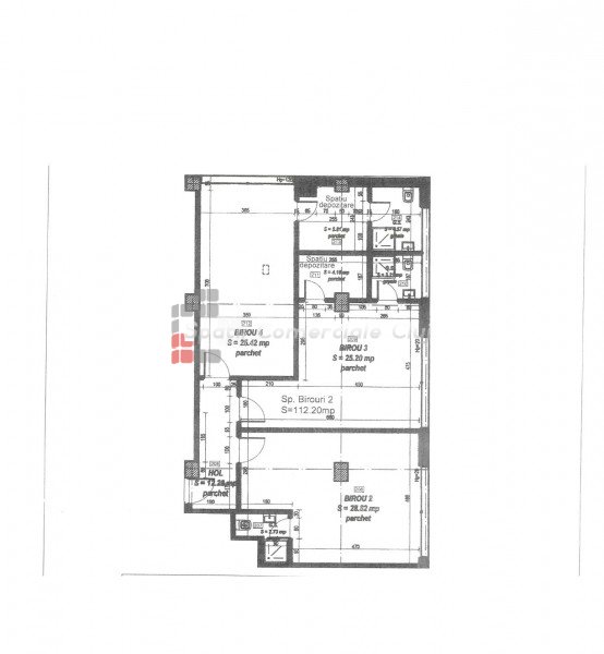
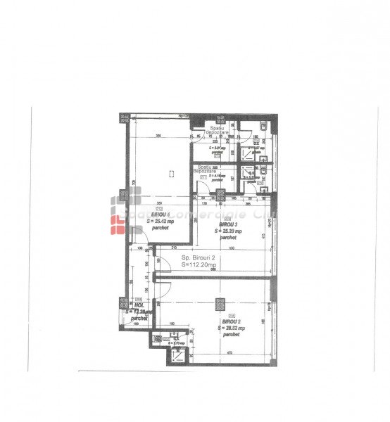
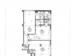
Spatii Comerciale Cluj va ofera spre inchiriere un spatiu de birou de 112 mp, situat in cartierul Plopilor. Zona parcul Rozelor, Winners Sports Club si restaurant Nobori. Acesta este compartimentat in 4 incaperi si 3 grupuri sanitare, situat la etajul 1 al imobilului. Spatiul dispune de centrala termica proprie, toate contorizarile individuale. Pentru mai multe detalii sau pentru o vizionare, nu ezitati sa ne contactati!