

Utilitati generale: Electricitate, Curent trifazic, Apa, Gaz, Canalizare, Cablu TV
Climatizare: Aer conditionat
Finisaje:Izolatii termice (Exterior), Podele (Mocheta), Ferestre cu geam termopan (Aluminiu), Iluminat (Lampi, Spoturi, Aplice, Exterior cladire, Lumina naturala)
Dotari: Contorizare (Apometre), Dotari imobil (Interfon, Videointerfon, Lift), CFR
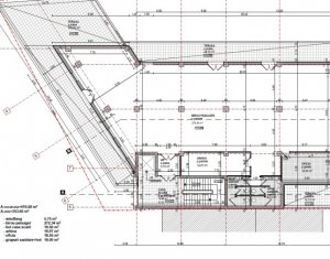
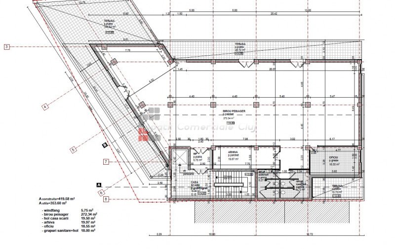
Va propun de inchirat un spatiu de birouri Clasa A situat in centrul orasului, langa cladirea iQuest, NTT si piata Mihai Viteazul. Spatiul este in suprafata de 315mp, 2 terase exterioare cu vedere panoramica, chicineta si loc de luat masa, grupuri sanitare barbati/femei, sistem de ventilatie cu aport de aer proaspat, BMS. Mobilierul existent se poate pastra de catre viitorii chiriasi. Locatia centrala ii confera plus valoare pentru angajati cat si accesul usor la toate facilitatile centrului. Pret 13 euro/mp plus cheltuielile proprii.