

Utilitati generale: Electricitate, Apa, Telefon
Sistem de incalzire: Centrala termica
Finisaje:Izolatii termice (Exterior, Interior, Bloc izolat termic), Podele (Parchet, Gresie), Ferestre cu geam termopan (Aluminiu), Iluminat (Spoturi, Lumina naturala)
Dotari: Contorizare (Contor gaz), Dotari imobil (Interfon, Curte comuna)
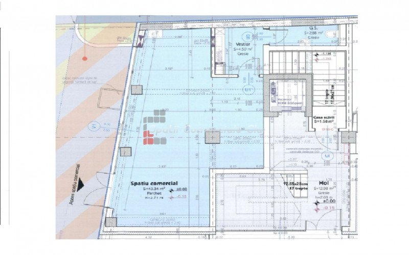
Spatii Comerciale Cluj ofera spre inchiriere spatiu comercial situat la parter, cu suprafata totala de 50.72 mp, cu vitrina de 8.3 ml. Spatiul este open space 43.34 mp, un vestiar de 5.50 mp si 1 grup sanitar de 2.88. Exista posibiliatea de a inchiria separat spatiu de parcare la 50 euro +TVA/ luna. Se preda la stadiul semifinisat, cu posibilitatea de personalizare in functie de activitatea desfasurata.