

Utilitati generale: Electricitate, Apa
Finisaje:Izolatii termice (Exterior), Ferestre cu geam termopan (PVC), Iluminat (Exterior cladire, Lumina naturala)
Dotari: Dotari imobil (Interfon, Lift), CFR
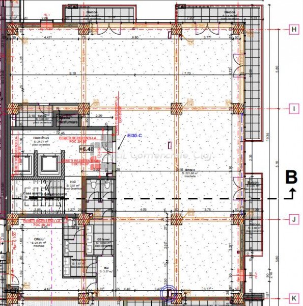
Spatiu birou in cladire de birouri clasa A Inchiriere minim 275- maxim 2200 mp spatiu pentru birouri dispus pe 8 nivele (275 mp/nivel). Spatiul are acces separat de restul complexului, 2 lifturi, sistem de securitate, contorizare separata pe nivele. Fiecare etaj e compartimentat astfel: 1 oficiu, 1 spatiu tehnic, 2 grupuri sanitare, 5 terase si 220 mp open space. Gradul de finisare se stabileste impreuna cu chiriasul. Sunt disponibile si 40 de parcari subterane.