

Utilitati generale: Electricitate, Curent trifazic, Apa, Gaz, Canalizare
Sistem de incalzire: Centrala termica
Climatizare: Aer conditionat
Finisaje:Izolatii termice (Exterior), Ferestre cu geam termopan (Aluminiu), Iluminat (Lampi, Spoturi, Aplice, Exterior cladire, Lumina naturala)
Dotari: Contorizare (Apometre, Contor caldura), Parcare proprie
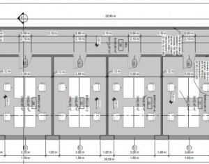
Se ofera spre inchiriere un etaj complet pentru activitate de birouri sau microproductie in suprafata de 238mp utili. Spatiul face parte dintr-o hala noua recent finalizata si este situat pe Blvd Muncii, zona CUG. Configuratie open space, cu incalzire in pardoseala, grupuri sanitare la cheie, aer conditionat si locuri de parcare in fata cladirii. Spatiul se poate suplimenta cu alte doua etaje identice.