
Utilitati generale: Electricitate, Curent trifazic, Apa, Gaz, Canalizare
Sistem de incalzire: Centrala termica
Climatizare: Aer conditionat
Finisaje:Izolatii termice (Exterior), Podele (Parchet, Mocheta), Ferestre cu geam termopan (Aluminiu), Iluminat (Lampi, Spoturi, Aplice, Exterior cladire, Lumina naturala)
Dotari: Contorizare (Apometre, Contor caldura), Parcare proprie
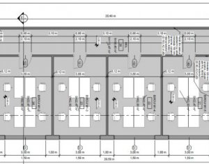
Se ofera spre inchiriere 2 etaje ale unei cladiri noi din zona Bdul Muncii - CUG, pentru activitate de birouri, sediu firma si showroom sau microproductie. Oferta insumeaza cele 2 etaje disponibile in suprafata totala de 500mp, inclusiv locuri de parcare exterioare. Spatiul face parte dintr-o hala noua recent finalizata si este situat pe Blvd Muncii, zona CUG. Configuratie open space, cu incalzire in pardosea, grupuri sanitare la cheie, aer conditionat si locuri de parcare in fata cladirii. Spatiul poate fi configurat si personalizat in functie de necesitatile clientului.