
Utilitati generale: Electricitate, Apa, Gaz, Canalizare
Sistem de incalzire: Centrala termica, Calorifere
Finisaje:Izolatii termice (Exterior), Podele (Gresie), Ferestre cu geam termopan (PVC), Iluminat (Aplice, Exterior cladire, Lumina naturala)
Dotari: Contorizare (Apometre, Contor gaz)
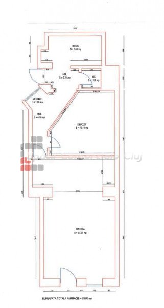
Oportunitate!!! Spatiul Ideal pentru activitati comerciale, Cu suprafata de 70mp , vitrina la strada si front de 5 m. Spatiul este finisat , contorizare separata pe toate utilitatile, compartimentare flexibila, se poate aduce la stadiul de open space, peretii fiind pe structura usoara. Merita vizionat. Pentru detalii va stau la dispozitie. P20040