
Utilitati generale: Electricitate, Apa, Canalizare, Cablu TV, Telefon
Climatizare: Aer conditionat
Finisaje:Izolatii termice (Exterior), Podele (Mocheta), Ferestre cu geam termopan (Aluminiu), Iluminat (Lampi, Spoturi, Aplice, Exterior cladire, Lumina naturala)
Dotari: Contorizare (Apometre, Contor caldura), Dotari imobil (Videointerfon, Lift, Curte comuna), CFR, Spatiu verde amenajat
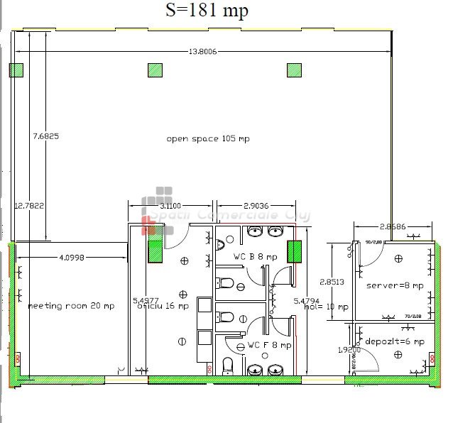
De inchiriat un spatiu de birou intr-un Business Center situat in zona centrala langa Tribunalul Cluj. Compus din suprafata open space de 105mp, meeting room, chicineta, grupuri sanitare proprii si un mic depozit. Centrul de Business ofera: - parking subteran pe doua niveluri, cu acces controlat (bariere, carduri/tichete) ▪ servicii suport (secretariat general, receptie, control acces, copiere, listare) ▪ paza si securitatea (paza umana 24 ore/24 si supraveghere video) ▪ servicii de curatenie si intretinere a spatiilor comune ▪ grup electrogen (generator) pentru situatiile de urgenta ▪ servicii de Food & Beverage in Restaurant&Lounge Posibilitatea de inchiriere locuri de parcare subterane, contra cost.