

Utilitati generale: Electricitate, Curent trifazic, Apa, Gaz, Canalizare
Finisaje:Izolatii termice (Exterior), Ferestre cu geam termopan (PVC)
Dotari: Contorizare (Apometre, Contor gaz), Dotari imobil (Interfon, Lift), CFR
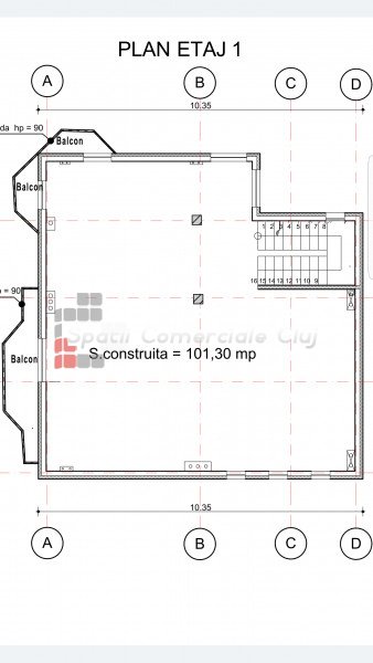
Va propun spre inchiriere un spatiu de birouri in suprafata de 400 mp, situat in cartierul Grigorescu, intr-o cladire noua, de tip vila. Spatiul se preda semifinisat, insa exista posibilitatea negocierii finisajelor de catre proprietar. Imobilul este compus din P + 2 etaje + M si are aproximativ 100 mp pe fiecare etaj. Compartimentarea este open space cu posibilitatea amenajarii dupa preferintele viitorului chirias. Exista 12 locuri de parcare in curtea privata a imobilului incluse in pret. Se preteaza pentru birouri, sau activitati de tip clinica medicala, in cel din urma caz, se va schimba destinatia imobilului. Pentru mai multe detalii sau pentru o vizionare, nu ezitati sa ma contactati!