

Utilitati generale: Electricitate, Apa, Gaz, Canalizare
Sistem de incalzire: Termoficare
Climatizare: Aer conditionat
Finisaje:Izolatii termice (Exterior, Interior), Ferestre cu geam termopan (PVC), Iluminat (Spoturi, Aplice, Exterior cladire, Lumina naturala)
Dotari: Parcare proprie
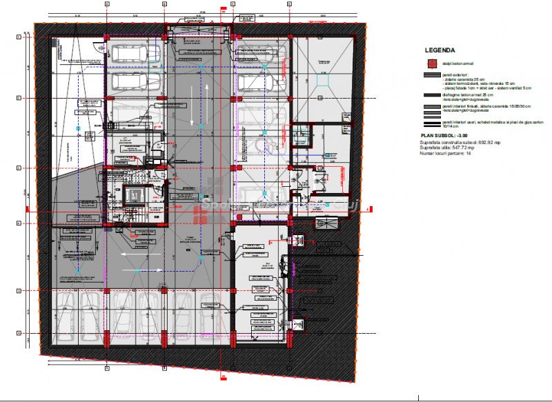
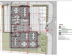
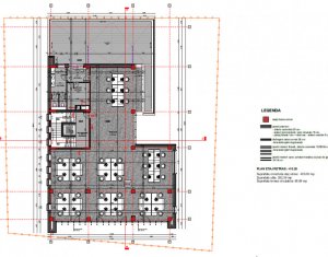
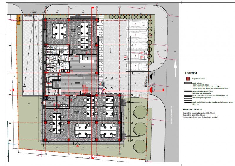
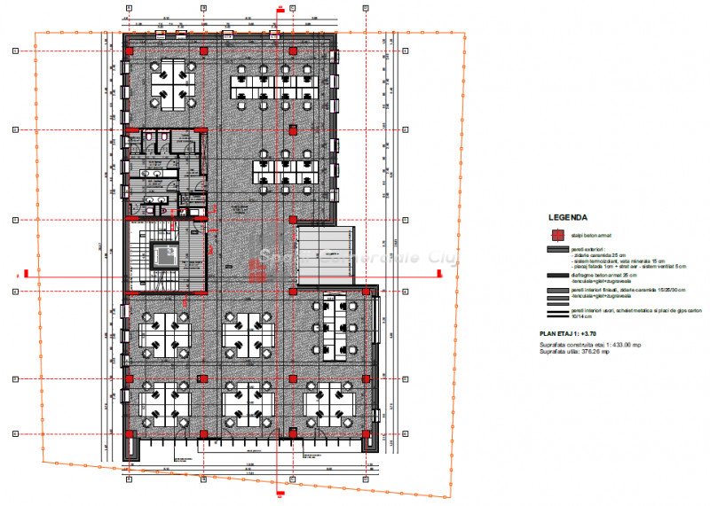
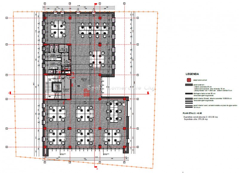
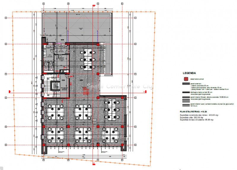
Cladire de birouri desfasurata pe S+P+3, situata pe malul Somesului cu spatii verzi, panorama spre parcul Babes. Clasa A, dispune de toate dotarile si echipamentele, finisajele standard ale unei cladiri de birouri. Fatada ventilata cu perete cortina de sticla. SU 1500mp de tip open space, fiecare nivel dispune de terase, spatii de recreere/relaxare. Se pun la dispozitie 14 locuri de parcare subterane si 5 exterioare. Pentru detalii suplimentare va stau la dispozitie.