

Utilitati generale: Electricitate, Apa, Gaz, Canalizare
Sistem de incalzire: Sobe de teracota
Finisaje:Podele (Parchet), Stare interior (Necesita renovare), Ferestre cu geam termopan (Lemn), Iluminat (Aplice, Exterior cladire, Lumina naturala)
Dotari: Contorizare (Apometre, Contor gaz), Dotari imobil (Curte comuna), Pivnita, Dependinte
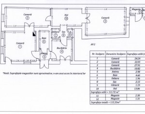
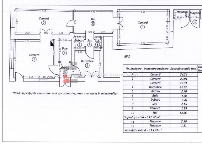
Spatiul este compus din 3 camere imense, doua sasuri, grup sanitar si o chicineta (nimeni nu mai gateste la birou :) ), pivnita de aproximativ 20mp si doua magazii pentru depozitare. Exista 3 usi acces, doua fiind din curtea comuna si una din strada. Vizibiliatate foarte buna. Se preteaza foarte bine pentru cabinete notariale, birouri de consultata, birou avocatura etc. Necesita renovare, dar proprietarul este dispus sa compenseze renovarea cu valoarea chiriei sau sa contribuie la cheltuielile de renovare (este dipus la variante de negociere).