
Utilitati generale: Electricitate, Curent trifazic, Apa, Gaz, Canalizare
Sistem de incalzire: Centrala termica, Calorifere
Finisaje:Izolatii termice (Exterior), Podele (Gresie), Ferestre cu geam termopan (PVC, Aluminiu), Iluminat (Lampi, Spoturi, Aplice, Exterior cladire, Lumina naturala)
Dotari: Contorizare (Apometre, Contor gaz), Dotari imobil (Interfon, Curte comuna)
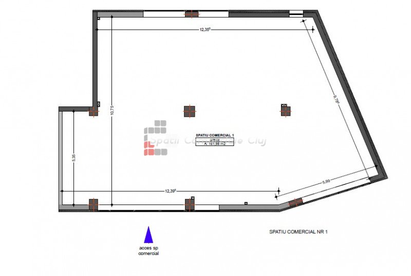
De inchiriat un spatiu comercial in suprafata de 162mp, de tip open space. Spatiul se preteaza ideal la servicii comerciale, farmacii, optica, magazin de proximitate. Vitrina la strada, acces direct de pe trotuar si acces aprovizionare din curtea interioara imobilului. Localizare foarte buna, tavan inalt, posibilitate de amenajare in functie de nevoi. Vad comercial foarte bun, atat pietonal cat si auto. Expunere comerciala si vitrina generoasa