

Utilitati generale: Electricitate, Apa, Gaz, Canalizare
Sistem de incalzire: Centrala termica, Calorifere
Finisaje:Podele (Parchet, Gresie), Ferestre cu geam termopan (PVC), Iluminat (Aplice, Exterior cladire, Lumina naturala)
Dotari: Contorizare (Apometre, Contor gaz), Dotari imobil (Curte comuna), Parcare proprie
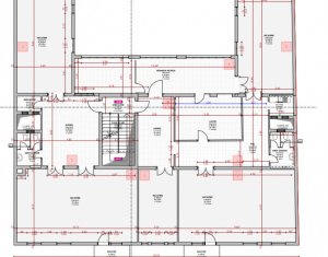
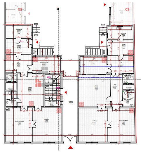
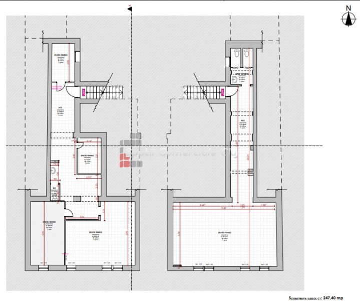
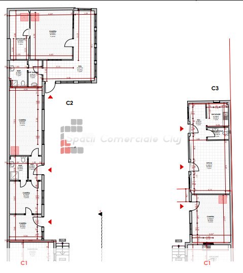
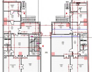
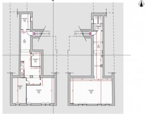
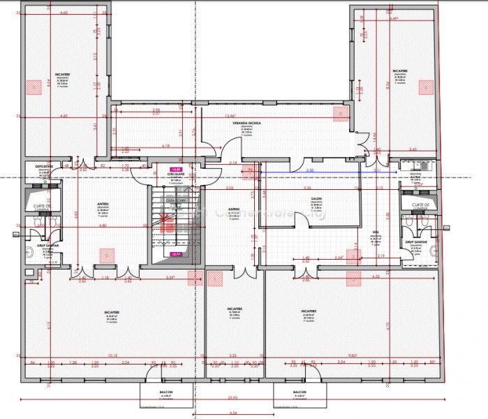
Va ofer spre inchiriere un spatiu pentru activitati de birou in suprafata utila totala de 960mp Aceasta suprafata este compusa din multiple incaperi dispuse pe 3 niveluri : parter : 500mp compusi din 6 camere, garderoba, 2 meeting rooms, veranda inchisa , loc de luat masa, bucatarie, oficiu,hol, depozitare. mansarda: 300mp compusi din 5 camere, depozit, oficiu, meeting room, grup sanitar. si demisol 160mp compus din 5 spatii tehnice hol, grupuri sanitare. Inchirierea se poate face pe suprafata totala sau pe nivel , pretul fiind de 14 euro/mp. Spatiul este curat si finisat, cu parchet, vopsea lavabila, incalzirea se face prin CT cu calorifere. La cerere se pot oferi locuri de parcare in curte.