
Utilitati generale: Electricitate, Curent trifazic, Apa, Gaz, Canalizare
Climatizare: Aer conditionat
Finisaje:Ferestre cu geam termopan (Aluminiu), Iluminat (Lampi, Spoturi, Aplice, Exterior cladire, Lumina naturala)
Amenajare strazi (Asfaltate, Betonate)
Vecinatati: Autostrada Transilvania, nod autostrada Gilau
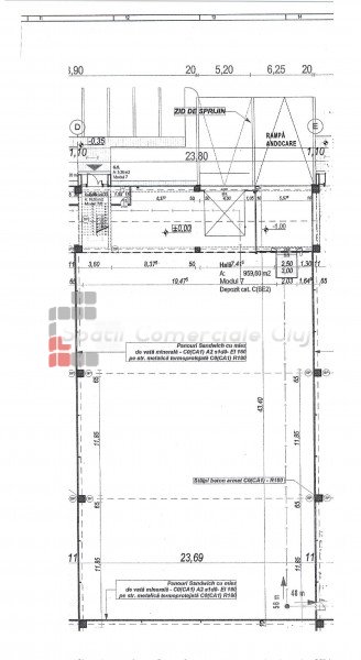
Hala/depozit de inchiriat in suprafata de 960mp la sol plus birouri la etaj 140mp, pentru depozitare, productie sau logistica. Complexul este situat in Gilau-Cluj, langa nodul de autostrada A3, cu vedere de pe DN1 si de pe podul autostrazii. Specificatii tehnice moderne, atorizatie ISU, sprinlere, rampe hidraulice, drive-in, iluminat LED, birouri amenajate la mezanin, incluzand locuri de parcare TIR, parcare clienti, zona de manevra si spatii verzi. Specificatii tehnice clasa A, inaltime utila 10m, deschidere tronson de 24m, putere instalata 900 KwA disponibili in parc. Birouri, grupuri sanitare, oficiu, vestiar finisate la cheie si incalzite cu centrala proprie pe gaz.