
Utilitati generale: Electricitate, Curent trifazic, Apa, Gaz, Canalizare
Finisaje:Izolatii termice (Exterior), Ferestre cu geam termopan (Aluminiu), Iluminat (Lampi, Spoturi, Aplice, Exterior cladire, Lumina naturala)
Dotari: Contorizare (Apometre, Contor caldura), Dotari imobil (Videointerfon, Lift, Spatii agrement, Gradina), CFR
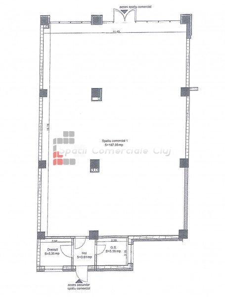
Spatii Comerciale Cluj ofera spre inchiriere in zona centrala a orasului un spatiu comercial in suprafata de 200mp, in zona multinationalelor Bosch, iQuest, NTT Are expunere si vizibilitate foarte buna, intrare directa din strada, acces secundar in spate pentru aprovizionare, sistem de ventiloconvectoare. Se preda la stadiul semifinisat.