
Utilitati generale: Electricitate, Curent trifazic, Apa, Gaz, Canalizare
Sistem de incalzire: Centrala termica, Calorifere
Finisaje:Izolatii termice (Exterior), Ferestre cu geam termopan (PVC)
Dotari: Contorizare (Apometre, Contor gaz), Dotari imobil (Interfon, Lift), CFR
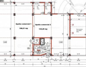
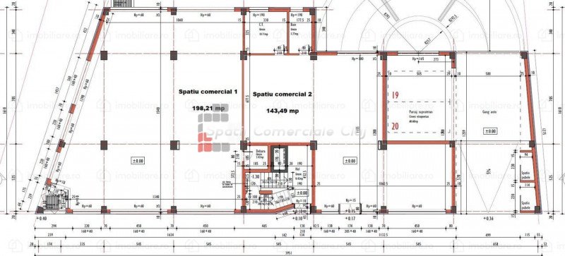
Spatiu comercial in Someseni, cu urmatoarele caracteristici: - suprafata: 200 mp - exista posibilitate de inchiriere si a spatiului alaturat cu suprafata de 143 mp - vitrina: 22 ml la strada principala - trafic auto intens - compartimentare open space - curent trifazic - excelent pentru showroom/magazin - 7 locuri de parcare la subsol (50 Euro+TVA).