
Utilitati generale: Electricitate, Curent trifazic, Apa, Gaz, Canalizare
Sistem de incalzire: Centrala termica, Calorifere
Finisaje:Izolatii termice (Exterior), Podele (Parchet), Ferestre cu geam termopan (PVC), Iluminat (Lampi, Spoturi, Aplice, Exterior cladire, Lumina naturala)
Dotari: Contorizare (Apometre, Contor gaz), Dotari imobil (Acoperis, Curte, Gradina)
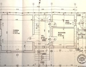
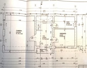
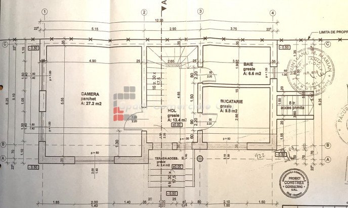
Inchiriere spatiu cu destinatie mixta singur in curte, str. Fabricii Marasti Amplasat pe un teren total de 600mp, proprietatea se compune din - casa P+E 3 incaperi, 2 bai, terasa in suprafata de 120mp, nemobilata - depozit/hala pe structura metalica cu panouri sandwich in suprafata de 70mp, H=4m Curtea pavata acomodeaza peste 5 locuri de parcare Ideal pentru firme care au nevoie si de zona de productie sau depozitare.