

Utilitati generale: Electricitate, Apa, Gaz, Canalizare
Sistem de incalzire: Centrala termica, Calorifere
Finisaje:Podele (Parchet), Ferestre cu geam termopan (PVC)
Dotari: Contorizare (Apometre, Contor gaz)
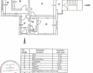
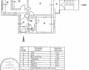
Oferim spre inchiriere un spatiu comercial de 60 mp pe strada Plopilor, in zona restaurantului Nobori. Intrare este din strada si are vizibilitate foarte buna. Spatiul este situat la parterul unui bloc si este compartimentat in 3 incaperi, hol si grup sanitar. Este renovat recent si se poate ocupa imediat. Figureaza ca spatiu comercial in CF - potrivit pentru orice tip de activitate, inclusiv cabinet medical sau stomatologic. Pentru mai multe detalii sau vizionare, ma puteti contacta telefonic. ID - P26661