

Utilitati generale: Electricitate, Curent trifazic, Apa, Canalizare
Dotari: Contorizare (Apometre, Contor gaz)
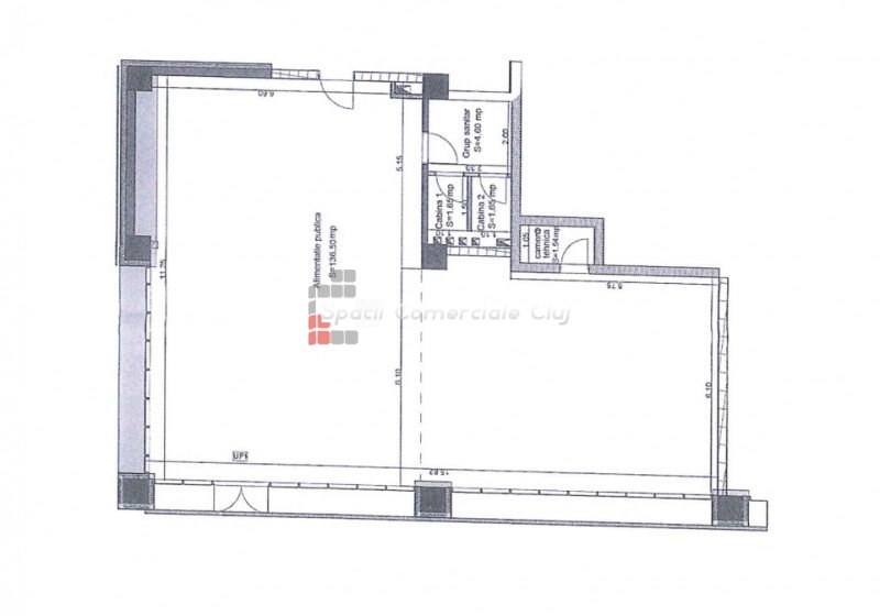
Spatii Comerciale Cluj ofera spre inchiriere un spatiu proiectat special pentru alimentatie publica, cu vad comercial foarte bun si facilitati deosebite. Spatiul este situat central, in zona multinationalelor Bosch, iQuest, NTT. Are expunere si vizibilitate foarte buna, intrare directa din strada, acces secundar pentru aprovizionare. Suprafata de 136 mp este open space si se preda la stadiul de semifinisat. Are urmatoarele caracteristici: curent trifazic, sistem ventiloconvectoare, sistem de tratare a aerului. Separat se pot inchiria cateva locuri de parcare. Taxe suplimentare - 3.5 Euro/mp+TVA.