
Utilitati generale: Electricitate, Apa, Gaz, Canalizare
Sistem de incalzire: Centrala termica
Finisaje:Izolatii termice (Exterior, Interior, Bloc izolat termic)
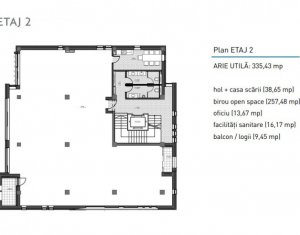
Va propun spre inchiriere o suprafata de 630 mp de birouri situata in cladire moderna clasa A, in Buna ziua. Imobilul modern, cu functiuni integrate, este gandit sa ofere companiilor un spatiu optim pentru desfasurarea activitatii. Facilitatile cladirii includ: - instalatie de climatizare tip aer conditionat multisplit; - incalzire in pardoseala; - hol acces cu spatiu de receptie; - lift Kone panoramic pentru 6 persoane; - zona de parcare biciclete; - garaj subteran incalzit. Spatiul de 630 mp este distribuit in felul urmator: - parter - 290 mp - 1 open space generos, 2 birouri separate, 1 chicineta si 2 grupuri sociale; - etajul 2 - 340 mp - este un open space generos, compartimentat de catre fostii chiriasi in 6 zone de lucru, spatiu chicineta, 2 grupuri sociale. La etajul al 2 lea va puteti bucura de 2 logii cu priveliste superba asupra Clujului. In pretul afisat sunt incluse 4 locuri de parcare, cu posibilitatea de a inchiria un numar suplimentar. Serviciile de management si administrare ale cladirii - 2 Euro/mp + TVA. Un mediu de lucru placut si modern pentru companiile care isi doresc un sediu premium. Pentru programarea unei vizionari, ma puteti contacta telefonic.