Aceasta oferta NU mai este disponibila.
Contactati agentul pentru o oferta personalizata, sau vizitati ofertele similare.
Vezi Oferte Similare
Oferte similare
Va oferim spre inchiriere spatiu birou de 51 situat pozitionat optim, blvd Eroilor, colt cu piata Avram Iancu.
Este c...
» Clasa de birouri B, 2 camere, 51.05 m2
Welt imobiliare va ofera spre inchiriere un apartament in zona Centrala pentru birou.
Acesta are o suprafata de aprox...
» 2 camere, 50 m2
Va prezentam spre inchiriere un spatiu pentru birou, situat in Centru, str. Regele Ferdinand, langa Central.
Se afla la...
» Clasa de birouri A, 3 camere, 72 m2
Va propun spre inchiriere o suprafata de 57mp o singura incapere situat in cladire office clasa A.
Cladirea este situat...
» Clasa de birouri A, 1 camera, 57 m2
Inchiriere spatiu pentru activitati de birou, situat langa Iulius Mall cu vedere spre lac.
Suprafata de 60mp open spac...
» 2 camere, 60 m2
Spatiul este dispus avand o incapere mare open space, bucatarie/chicineta, hol si grup sanitar, insumand 65mp plus o ter...
» 1 camera, 65 m2
Caracteristici
Constructie din:
Caramida
Suprafata construita:
63 m2
Utilitati
Utilitati generale: Electricitate, Apa, Gaz, Canalizare
Alte detalii zona
Va oferim spre inchiriere un spatiu de birou pe strada Dorobantilor, in apropiere de Tribunal si Regina Maria.
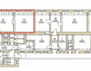
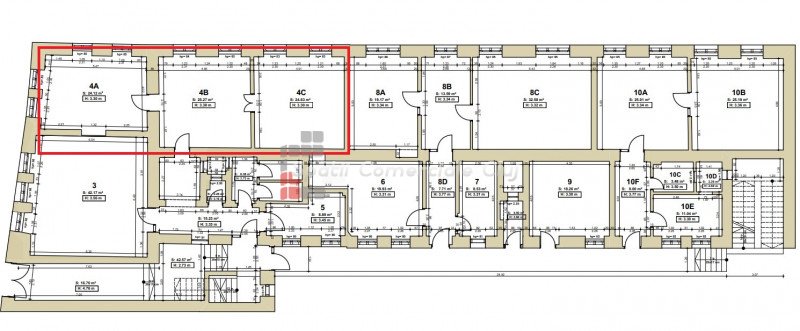
Spatiul de 63 mp este la parter intr-o cladire in care sunt doar firme si este compartimentat in 3 incaperi (ca in schita din imagini).
Cladirea este consolidata si spatiul este renovat.
Incalzirea se face cu centrala pe imobil, cheltuielile sunt mici, se platesc pausal, in functie de suprafata si numarul de persoane.
Pretul este de 9 Euro/mp - se adauga TVA doar pentru firmele platitoare de TVA.
Pentru mai multe detalii si vizionare, ne puteti contacta telefonic.