Aceasta oferta NU mai este disponibila.
Contactati agentul pentru o oferta personalizata, sau vizitati ofertele similare.
Vezi Oferte Similare
Oferte similare
Spatii Comerciale Cluj va propune spre inchiriere un apartament de 2 camere, zona Eroilor, ideal pentru spatiu birou, se...
» 2 camere, 36 m2
Situat in cladire de birouri de langa Vivo Center Cluj Napoca
Spatiul disponibil este situat la etaj, open space, 60mp ...
» Clasa de birouri A, 1 camera, 60 m2
Va propun spre inchiriere o suprafata de 57mp o singura incapere situat in cladire office clasa A.
Cladirea este situat...
» Clasa de birouri A, 1 camera, 57 m2
Vă prezentăm spre închiriere un spațiu pentru birouri, situat la 2 minute de Platinia. Acesta se află la mansarda u...
» 1 camera, 35 m2
Avem placerea de a va oferi spre inchiriere un birou cu trei camere decomandate in circuit, in suprafata de 83 de mp, si...
» 3 camere, 83 m2
Inchiriere spatiu pentru activitati de birou sau servicii, inclusiv unitati de invatamant, cabinet psihologie, avocatura...
» 2 camere, 42.8 m2
Caracteristici
Constructie din:
Caramida
Suprafata construita:
63 m2
Utilitati
Utilitati generale: Electricitate, Apa, Gaz, Canalizare
Alte detalii zona
Va oferim spre inchiriere un spatiu de birou pe strada Dorobantilor, in apropiere de Tribunal si Regina Maria.
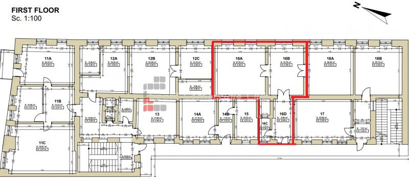
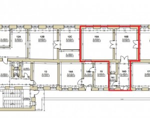
Spatiul de 63 mp este la etajul 1 intr-o cladire in care sunt doar firme si este compartimentat in 2 incaperi, hol intrare si 1 grup social (ca in schita din imagini).
Cladirea este consolidata si spatiul urmeaza sa fie renovat (parchetul si geamurile).
Incalzirea se face cu centrala pe imobil, cheltuielile sunt mici, se platesc pausal, in functie de suprafata si numarul de persoane.
Pretul este de 9 Euro/mp - se adauga TVA doar pentru firmele platitoare de TVA.
Pentru mai multe detalii si vizionare, ne puteti contacta telefonic.