

Utilitati generale: Electricitate, Apa, Gaz, Canalizare, Cablu TV
Sistem de incalzire: Centrala termica, Calorifere
Finisaje:Izolatii termice (Exterior), Podele (Parchet, Gresie), Ferestre cu geam termopan (PVC), Iluminat (Lampi, Spoturi, Aplice, Exterior cladire, Lumina naturala)
Dotari: Contorizare (Apometre, Contor gaz), Dotari imobil (Gradina), Pivnita, Spatiu depozitare
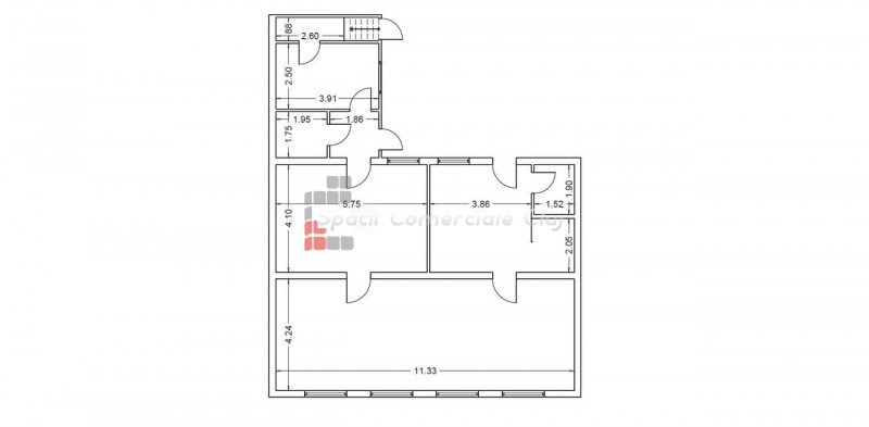
Spatii Comerciale Cluj ofera spre inchiriere un spatiu pentru activitati de birou sau servicii, situat in zona Tribunalului, str. Pitesti. Spatiul este situat la casa, compus din receptie, 3 incaperi luminoase, 2 grupuri sanitare, pivnita si gradina. Este potrivit tuturor activitatilor de birou si/sau servicii.